Club-Lounge „Tower“, Berlin Mitte 2009-2010 Galerie Nord, Berlin-Mitte 2005 Galerie für Interkultur, Berlin Mitte 2008
Club-Lounge „Tower“, Berlin Mitte 2009-2010 In einem Teilbereich des Sockelgebäudes des Berliner Fernsehturmes, das in den 60er Jahren durch Walter Herzog und Heinz Aust geplant und ausgeführt wurde, wurde ein neuer Club geplant. Mit einem vollkommen innovativen Konzept sollten Partyformate und Fernsehproduktionen realisiert werden. Ob Talkshow, Live-Konzert, 4-Gänge Menü oder coolstes Clubleben.
Für diese sehr unterschiedlichen Nutzungen erstellte unser Büro ein Raum- und Nutzungskonzept und war zusätzlich verantwortlich für die Innengestaltung und das Design. Leider wurde das Projekt wegen mangelnder Finanzierung vorzeitig eingestellt.

Club Lounge Tower, Raum- und Nutzungskonzept.


Erste Visualisierung des neuen Clubs.
Galerie Nord, Berlin-Mitte 2005 Das Kulturamt Mitte beauftragte unser Büro mit der konzeptionellen Erarbeitung von Raumprogramm und Außenwirkung für die Galerie Nord in Berlin Mitte. Die Galerie wurde in die Räume einer Kinder- und Jugendbibliothek verlegt und wird seitdem durch den Kunstverein Tiergarten e.V. betrieben.

Raumkonzept für die Galerie Nord in Berlin Mitte.
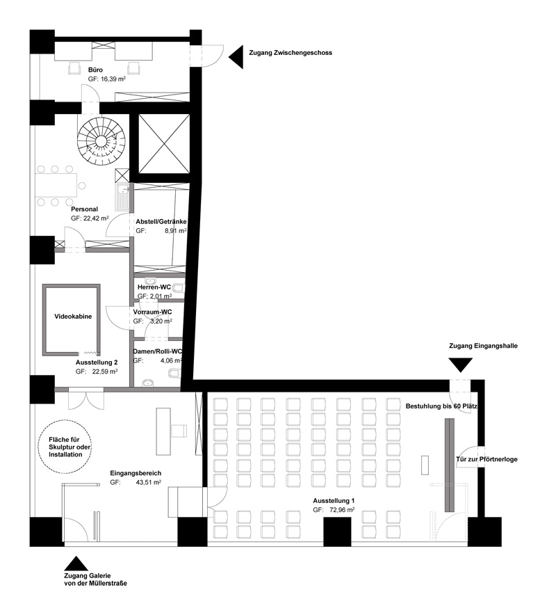
Galerie für Interkultur, Berlin Mitte 2008 Die Galerie für Interkultur liegt im Ortsteil Wedding und wurde in den ehemaligen Räumen eines Bürgerbüros eröffnet. Auch hierfür haben wir ein Raum- und Nutzungskonzept erarbeitet. Beide Projekte sind Beispiele dafür, wie aus Teilbearbeitungen letztendlich sehr gute Lösungen werden. Die weiteren Arbeiten wurden durch die Behörde selbst betreut und ausgeführt.

Entwurf für die Außengestaltung.

Galerie für Interkultur, Grundrissalternative.
nach oben |